Fenster
Fenster
Fenster
Türen
Türen
Türen
Tore & Zäune
Tore & Zäune
Tore & Zäune
Sonnenschutz
Sonnenschutz
Sonnenschutz
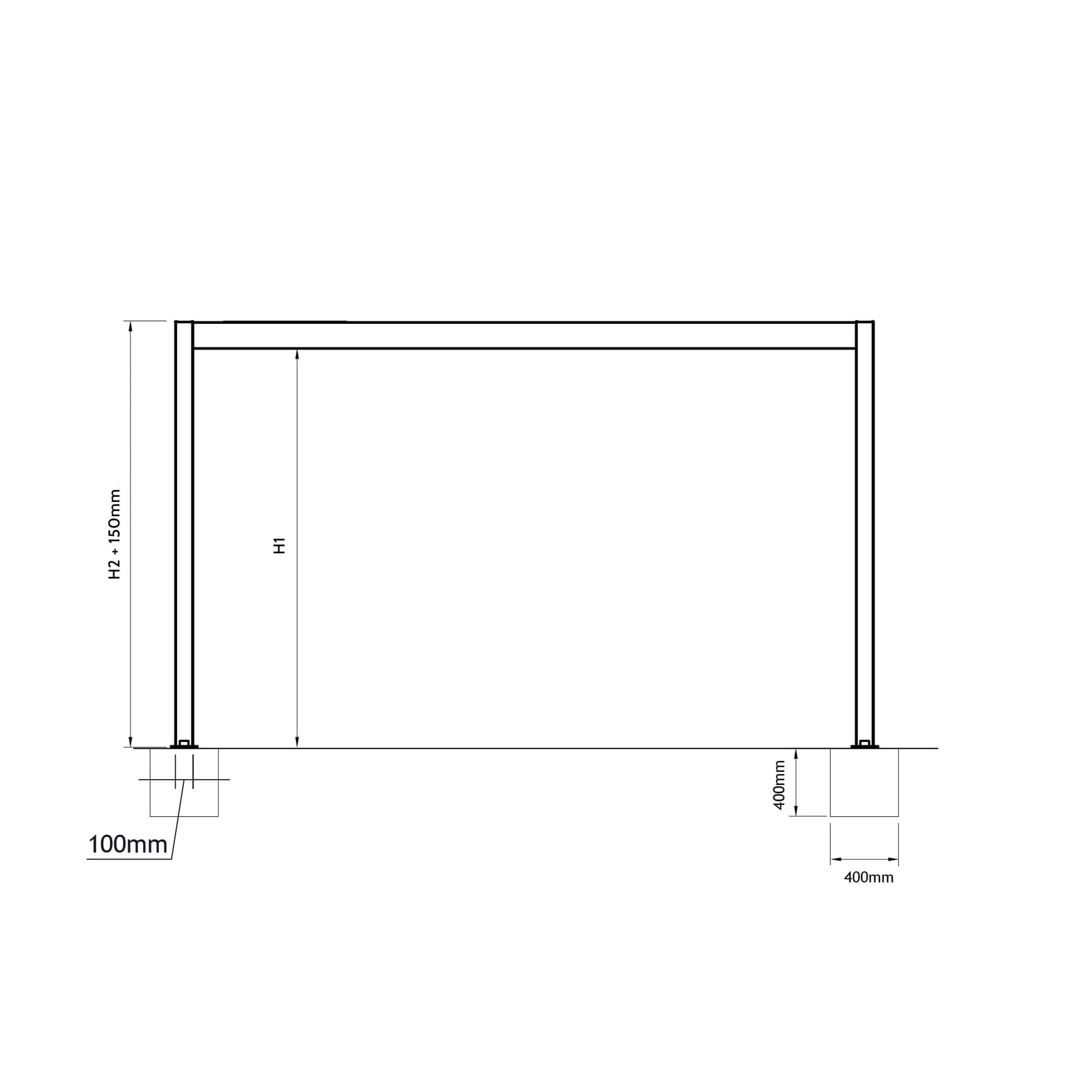
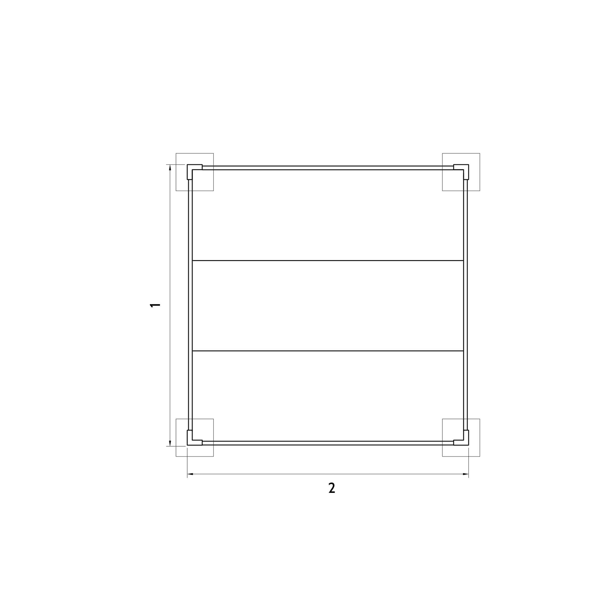
Carports
Carports
Carports
Zubehör
Zubehör
Zubehör
Anmelden / Registrieren
Kontakt / Hilfe












